Skip to main content
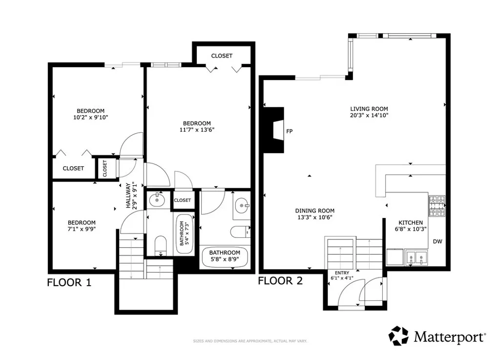
41935 Switzerland, Big Bear Lake, California 92315 - $519,900 | Allan Real Estate Investments