$4,282
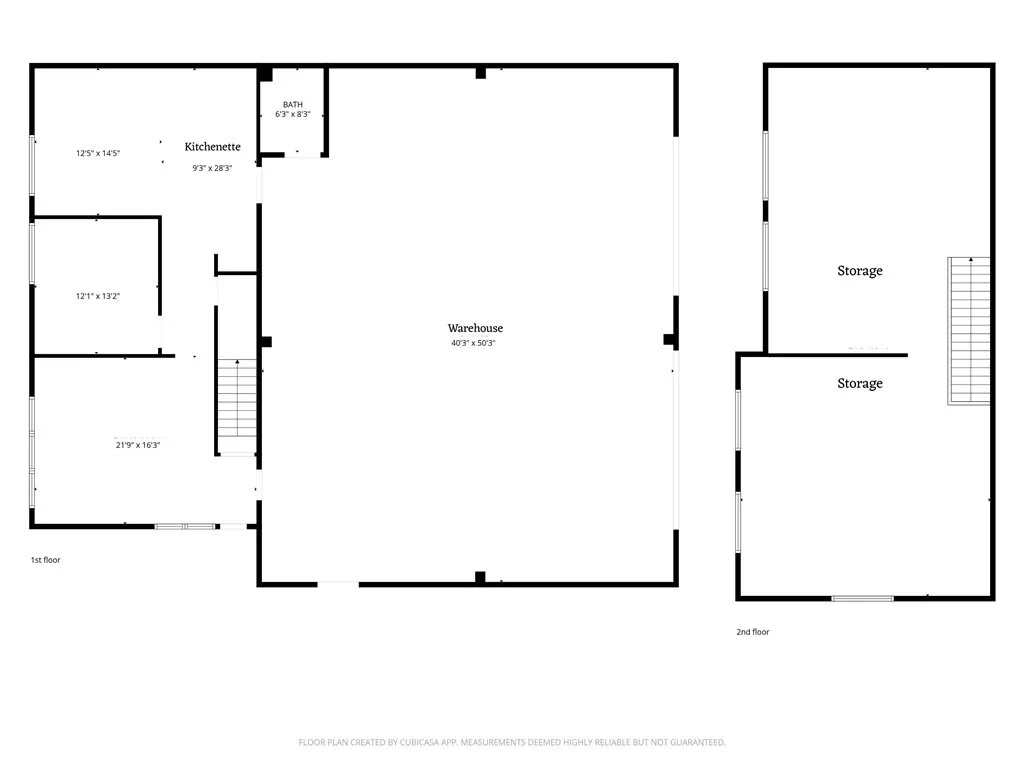
Industrial Flex Space For Lease – Combine Street Versatile industrial flex space available for immediate occupancy on Combine Street. The property features a functional combination of office, and warehouse along with a secure outdoor yard area. The front office area (approx. 1,012 sq ft) provides a front administrative workspace, while the warehouse area (approx. 2,184 sq ft +/-) includes roll-up door access for convenient loading and storage. At the rear of the building is a fenced and gated outdoor yard, ideal for equipment storage, vehicle parking, or additional operational space. An optional upstairs storage area (approx. 1,178 sq ft +/-) may be leased in addition. Could potentially be converted to expanded office space or other permitted uses. (This space not included in current lease offering) Property Features • Approx. 3196 sq ft total space (+/-) • Immediate availability • Front office area • Warehouse with roll-up doors • Upstairs storage or expansion space • Fenced and gated rear yard/storage area • Flexible industrial use opportunity
Click to interact with map
Listed by John Donaldson with GUIDE Real Estate (805) 237-4060
Property Type
Industrial
Status
Active
MLS Number
NS26052554
Year Built
2021
Lot Size
8,642 sq ft