$409,900
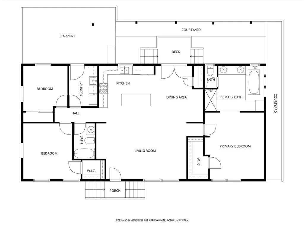
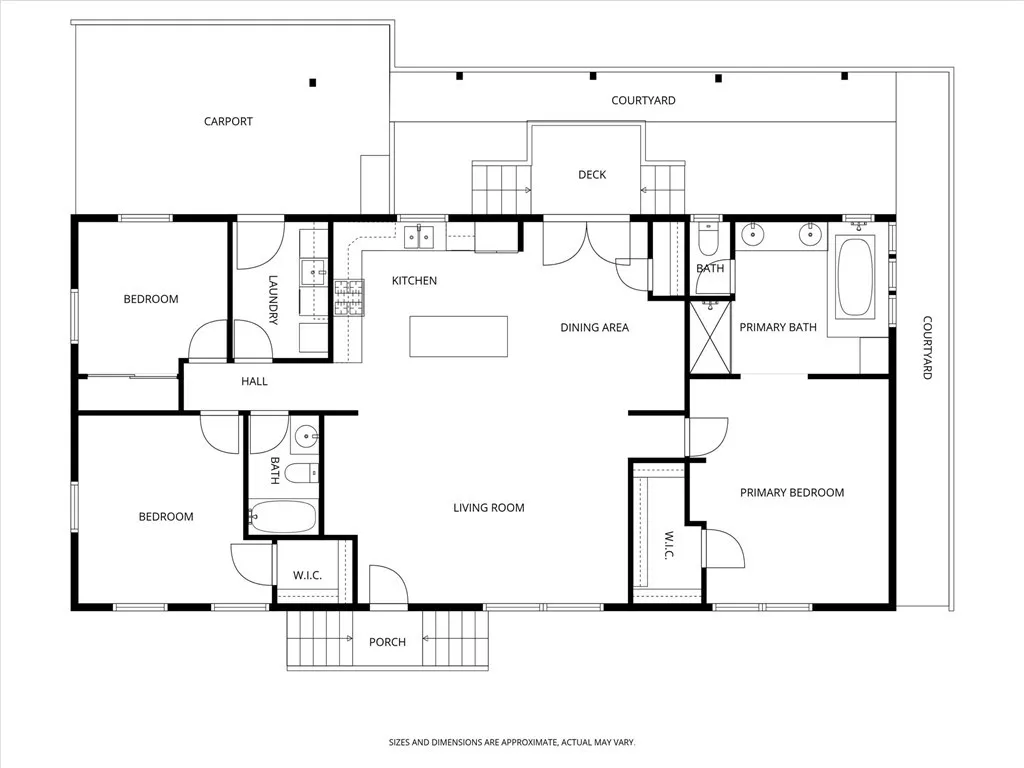
Just half a mile from the sand, this 3 bed coastal home in Morro Bay offers modern, low maintenance living in the sought after 55 plus Silver City Resort East, ideal as a primary residence or a well positioned second home along California’s Central Coast. Built in 2021, this approximately 1,500 square foot double wide features three bedrooms and two full bathrooms, combining contemporary design with comfort in one of the closest 55 plus communities to the ocean. High ceilings, skylights, and abundant natural light create an airy interior, while flexible nooks provide space for reading, hobbies, or a home office. The kitchen serves as the heart of the home with Whirlpool appliances, a French door refrigerator, oversized pan cabinetry, and a center island designed for gathering and everyday use. The open layout flows seamlessly into the dining and living areas, supporting both relaxed living and easy entertaining. French doors from the dining area open to a covered patio and fenced backyard, offering a private outdoor setting for gardening, pets, or coastal evenings. A separate laundry room adds convenience, and included items enhance move in readiness, including washer, dryer, refrigerator, island bench, primary bed with iron headboard, two nightstands, and a large storage shed. The space accommodates two vehicles plus a golf cart, adding flexibility for coastal living. A picket fence is shown virtually in one photo and park owner has approved the idea if buyer wants to add one. Silver City Resort East offers a vibrant yet comfortable lifestyle with a resident clubhouse, community events, neighborhood park gatherings, and a welcoming social atmosphere. Enjoy close proximity to Morro Rock, the Embarcadero, fresh seafood dining, kayaking, hiking trails, and everyday conveniences. Located on leased land with a monthly space rent of $999 plus metered utilities. Park approval required. Primary resident must be 55 or older with a co resident permitted at 45 plus. This move in ready home delivers modern design, functional space, and true beach close living in one of Morro Bay’s most desirable 55 plus coastal communities.
Click to interact with map
Listed by Kathy Scruton with Real Estate eBroker Inc. (760) 722-3222
Property Type
Manufactured In Park
Status
Active
MLS Number
SC25249105
Year Built
2021