6506 W West 83rd, Los Angeles, California 90045 - $7,750 | Allan Real Estate Investments
Location
Click to interact with map
Property Highlights
$7,750
6506 W W 83rd
Los Angeles, CA, 90045
6506 W W 83rd
•Los Angeles, CA, 90045
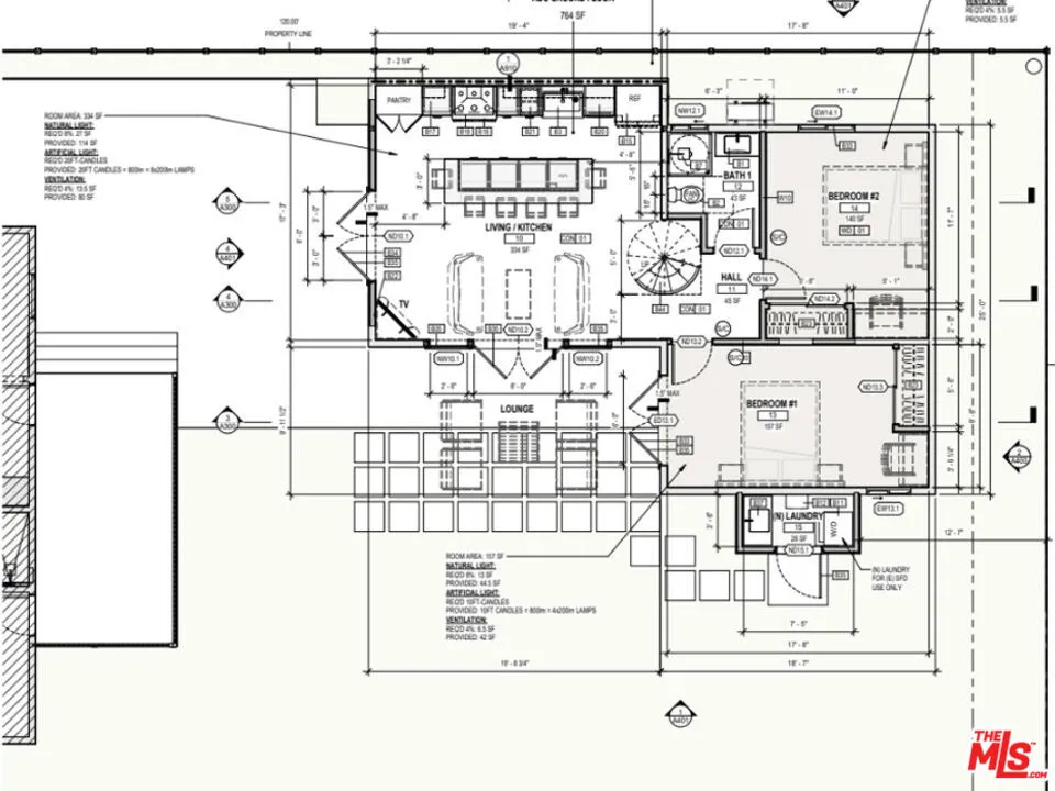
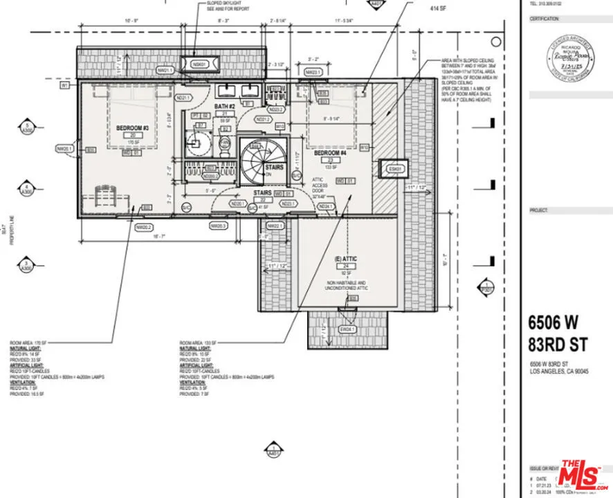
4
Bedrooms
2
Bathrooms
1,275
Square Feet
1
Days on Market
4
Bedrooms
2
Bathrooms
1,275
Square Feet
1
Days on Market
About
ADU. New construction with custom finishes. Great shared space for young professionals and/or students. Designer kitchen with stainless steel appliances. Bright, airy interiors. Close to Pepperdine University - (Howard Hughes campus,) LMU, and LAX. Private gated entrance. Peaceful shaded garden.
Listed by Paige Snear Apar with Hurwitz James Company (310) 477-8865