Skip to main content
Skip to main content
Search
Our Listings
About Us
Open menu
Log In
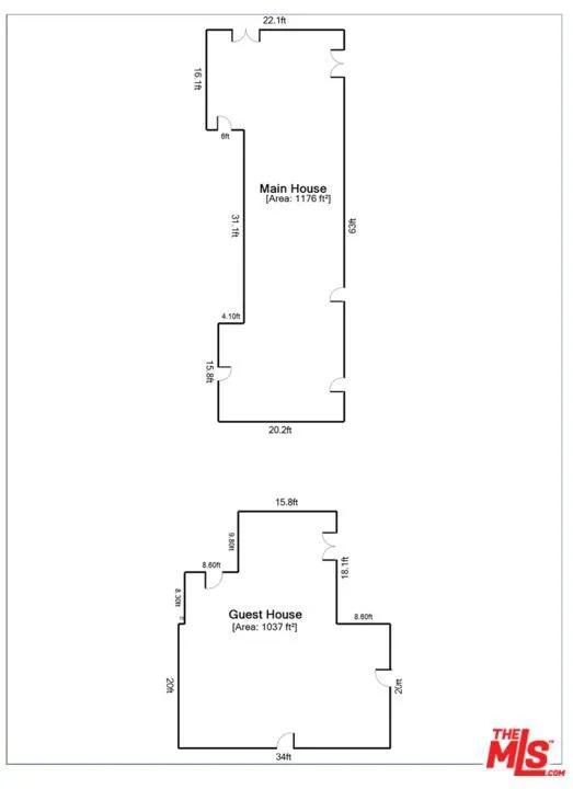
10311 Wheatland Avenue, Shadow Hills, California 91040 - $1,795,000 | Allan Real Estate Investments