$3,800,000
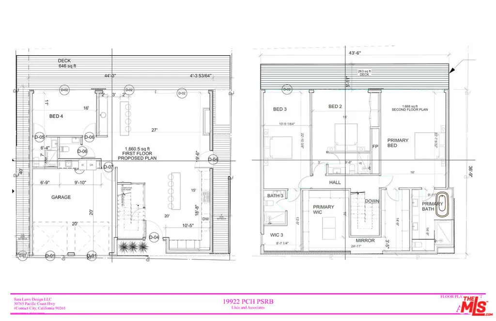
Exceptional build-ready beachfront offering with 57 linear feet of frontage and iconic Queen's Necklace views in Malibu. Positioned along coveted Big Rock Beach, this rare parcel comes with green-stamped plans approved by the City of Malibu Planning Department, with permits in the final stages, providing a significantly accelerated path to construction in a market where coastal approvals are often measured in years. The approved architectural plans encompass approximately 3,328 square feet of refined living space, featuring 4 bedrooms, 4 bathrooms, and a dedicated office or optional 5th bedroom. Approved for option for rooftop deck. The two-story design is thoughtfully curated with expansive ocean-facing decks, a two-car garage, and seamless transitions between indoor and outdoor living capturing the full essence of the Malibu beachfront lifestyle. Set on a 4,500 square foot lot, the future residence is designed to take full advantage of its premier setting, offering unobstructed panoramic ocean views, direct beach access, and front-row exposure to the coastline's celebrated Queen's Necklace, where city lights meet the Pacific in a dramatic nightly display. Enjoy the rhythm of the waves just outside your door. Opportunities with approvals at this stage are extremely limited. This is a turnkey pathway to new construction in one of Malibu's most desirable and tightly held beachfront enclaves.
Click to interact with map
Listed by Gina Alaina Longo with Coldwell Banker Realty (310) 457-6550
Property Type
Land
Status
Active
MLS Number
26749587
Year Built
N/A
Lot Size
4,535 sq ft