$780,000
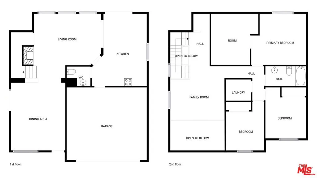
Come see 28441 Silverking Trl, a residence arranged for everyday practicality and comfortable living. The kitchen features a functional island, an accent backsplash, and stainless steel appliances. The primary bedroom contains a spacious walk in closet, and the primary bathroom provides double sinks with a separate tub and shower. A welcoming fireplace complements the interior, and an outdoor patio extends to a fenced in backyard. Updated comfort and thoughtful design converge.. Included 100-Day Home Warranty with buyer activation
Click to interact with map
Listed by Melissa Westfall with Opendoor Brokerage Inc. (480) 462-5392
Property Type
Single Family Residence
Status
Active
MLS Number
26819869
Year Built
1999
Lot Size
4,230 sq ft