$1,300,000
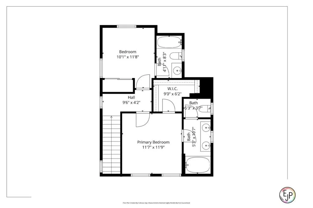
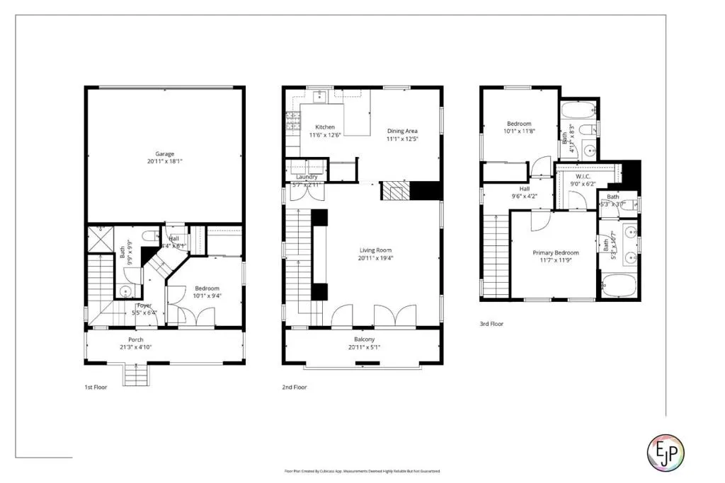
Welcome to this beautifully upgraded 3-story single-family home in the sought-after Communications Hill community. Thoughtfully designed with a flexible floor plan, this home features a full bedroom & bath on the lower level, ideal for guests, an office, or multigenerational living. Two bedrooms on the upper level; a spacious primary and a junior ensuite. Extensive upgrades and attention to detail shine throughout. The main level showcases engineered hardwood flooring, custom iron stair railings, and elegant finishes including wainscoting, crown molding, and designer lighting. The kitchen offers granite countertops with ogee edge, stainless steel appliances, bronze cabinet hardware, and stylish pendant lighting over the sink. Upstairs, both suites feature beautifully updated bathrooms with newer vanities, tile flooring, and upgraded shower/tub enclosures. The primary suite includes double doors leading to a spa-like bath w dual vanities and modern finishes. Additional enhancements include decorator inspired interior and exterior paint, taller baseboards, plantations shutters, custom wrought iron entry gate, upgraded laundry room doors, and designer touches throughout. Truly turn-key and move-in ready, this home blends comfort, style, & functionality in one exceptional offering.
Click to interact with map
Listed by Lori Robitaille Biasca with Christie's International Real Estate Sereno (408) 477-8828
Property Type
Single Family Residence
Status
Active
MLS Number
ML82044627
Year Built
2004
Lot Size
1,394 sq ft