$1,585,000
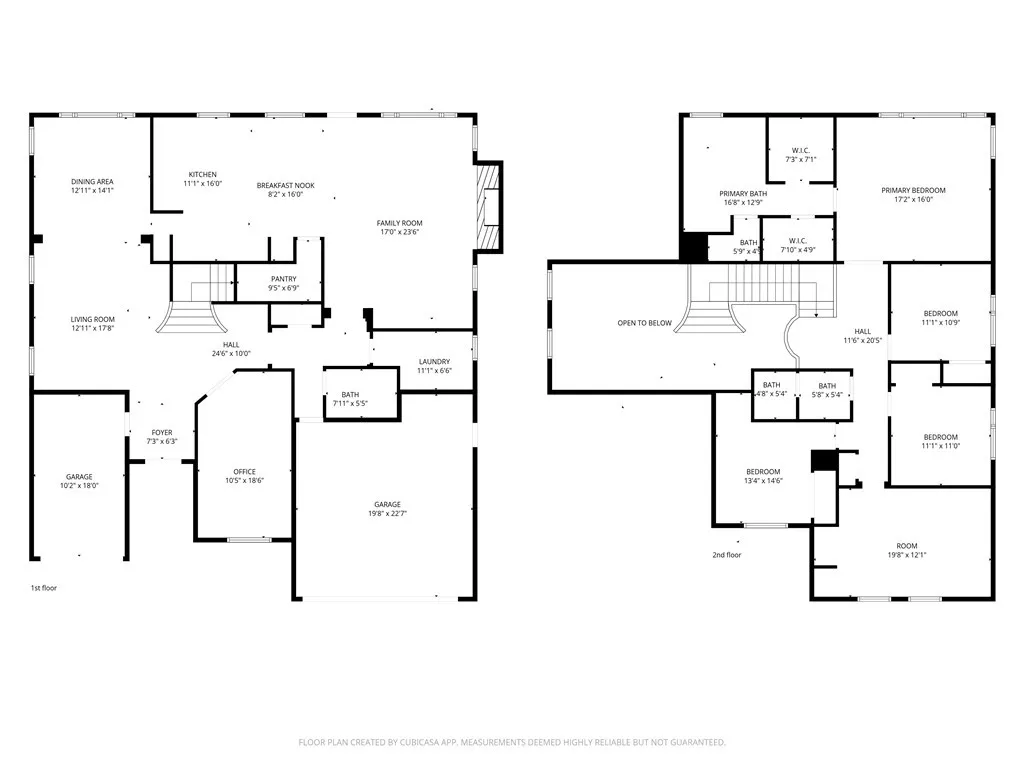
Welcome home to this beautifully upgraded residence located within the gated Enclave community of Stevenson Ranch. This five-bedroom, three-bath home offers impressive scale, thoughtful updates throughout, and over an acre of land, creating a true sense of space and privacy. From the moment you step inside, you are greeted by soaring ceilings, a custom-built staircase, an expansive sitting room, and a formal dining area filled with natural light from an abundance of windows. The chef’s kitchen has been tastefully updated with granite countertops, a large center island, soft-close custom cabinetry, newer appliances, and a newly added walk-in pantry with ample storage, all seamlessly connecting to the cozy family room where a fireplace and backyard views create the perfect everyday living space. Updated luxury vinyl flooring runs throughout most of the downstairs, enhancing the home’s modern and cohesive feel. A downstairs office can easily be converted into a sixth bedroom, ideal for multi-generational living, guest space, or a private work-from-home setup. The laundry room is also conveniently located on the main level. Upstairs, you will find four generously sized bedrooms and a recently updated shared bathroom. The primary suite is a true retreat, featuring a spacious layout, tray ceiling, custom plantation shutters, two walk-in closets, and a beautifully updated bathroom with dual sinks, custom cabinetry, a walk-in shower, and a separate soaking tub. Step outside to your private backyard oasis, complete with a saltwater pool and spa featuring dual pumps, a newer heater, and a variable speed system designed for efficiency and year-round enjoyment. The property also offers private RV access with sewer hookup, accommodating vehicles up to approximately 39 feet, an incredibly rare feature in this community. Additional highlights include surround sound speakers inside and out, dual-pane windows, recently replaced window screens, a newer dual HVAC system, fresh interior and exterior paint, and rain gutters. The home also features a traditional two-car garage along with a separate single-car garage. With a low HOA that includes maintenance of the well-kept hillside portion of the property and a prime location near shopping, dining, and convenient freeway access, this is a rare opportunity to own a highly upgraded home in one of Stevenson Ranch’s most desirable gated communities.
Click to interact with map
Listed by Joanne Weissman Littman with Equity Union (818) 989-2000
Property Type
Single Family Residence
Status
Active
MLS Number
SR26071791
Year Built
1997
Lot Size
1.02 acres