$425,000
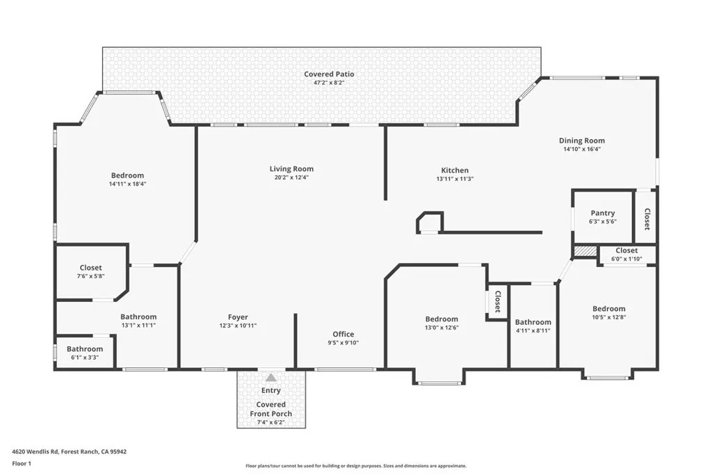
Welcome to your private slice of paradise at 4620 Wedlis Rd in Forest Ranch—where breathtaking views, peaceful surroundings, and thoughtful amenities come together on 5 stunning acres. This dream property offers truly incredible panoramic views of the Sutter Buttes, miles of rolling treetops, and canyon vistas that stretch as far as the eye can see. By night, enjoy unforgettable star-filled skies in complete tranquility. This 3-bedroom, 2-bathroom home spans 1,808 square feet and is filled with natural light, thanks to skylights and expansive picture windows that perfectly frame the surrounding beauty. The spacious living room opens to views of the sparkling saltwater pool and the incredible landscape beyond. The kitchen features white cabinetry, stainless steel appliances, abundant counter and cabinet space, and a walk-in pantry. Just off the kitchen, the large dining area offers even more stunning views, making every meal feel special. The layout includes two generously sized guest bedrooms and a guest bathroom, while the primary suite serves as a peaceful retreat with a walk-in closet and an ensuite bathroom complete with a jetted tub and separate walk-in shower. Step outside and the magic continues. The large covered patio and saltwater pool overlooks the sweeping views, making it the perfect place to relax or entertain. The property also features owned solar, a 2-car garage, a workshop, 2,500-gallon water storage, and lots of space for all your toys, animals, gardens, or future dreams. Mature fruit trees and open space add to the charm and functionality of this one-of-a-kind setting. All of this, just a short drive from Chico—offering the perfect balance of convenience and the peaceful beauty of nature.
Click to interact with map
Listed by Brent Silberbauer with eXp Realty of California, Inc. (888) 584-9427
Property Type
Single Family Residence
Status
Active
MLS Number
SN26086295
Year Built
1996
Lot Size
5.02 acres