$2,800
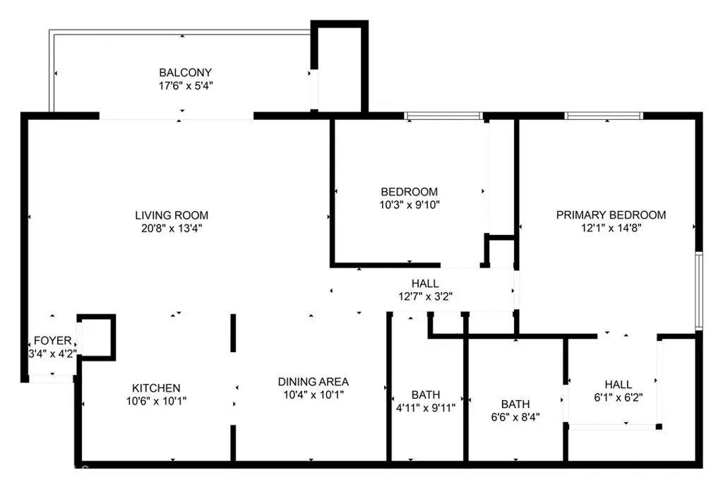
Welcome home to 55+ living at its finest. The 24 hour hour guard gated community of Landmark offers a secure place to call home that also features a convenient location and ample amenities. Between the tennis courts, salt water pool, putting green and vibrant community it is truly resort style living. This light, bright, fully equipped and complete package has 2 Bedrooms, 2 Full Bathrooms, 2 Car Garages which are just a few steps down on the backside of the building. Unit has just one common wall. Modern flowing designed wood grain like tile floor throughout give this home a seamless continuity. Come and see the perfect place to call home!
Click to interact with map
Listed by Heidi Ploog with COR Homes (714) 423-9345
Property Type
Condominium
Status
Active
MLS Number
PW26083125
Year Built
1973
Lot Size
8.52 acres