$569,900
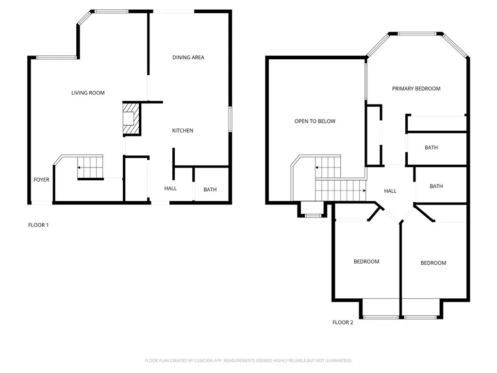
OWNED SOLAR FOR LOW COST LIVING. Solar, Corner Lot, Low Taxes and Upgraded make this Home very affordable. This home in Andover Square Community of Rialto is Move in Ready. The corner lot location with no adjacent rear neighbors provides additional privacy. Upon arrival the beautiful herringbone brick accents along with the lush landscaping will welcome you in. The living room has cathedral ceilings, a cozy fireplace and an abundance of natural lights that cascades throughout the room from the multiple windows. There is a formal dining alcove or currently used as the piano area adjacent to the living room. The kitchen has been remodeled with stainless steel appliances, upgraded warm cherry stain cabinets and stone counter tops. The dining area that is connected to the kitchen is spacious and looks out onto the rear patio. The laundry area is conveniently located near the kitchen and downstair bathroom. Upstairs there are 2 large additional bedrooms, a full bathroom and the primary suite. The primary suite is located towards the rear of the home adding to its privacy. The primary has 2 closets and its own private bathroom; this is the perfect sanctuary you have been searching for. The decorator paint colors and upgraded flooring add to the overall modern feel this home offers. Along with the decorator touches, remodeled kitchen and baths the upgrades also include a newer HVAC. The rear yard has a covered patio, artificial turf and has been thoughtfully designed for low maitenance and entertaining in mind. The shed is completely finished with drywall on the interior and has electrical outlets and lights, making it a perfect art studio or office space. This wonderful neighborhood offers 2 pools, sport courts, walking paths and plenty of green space, it feels like a resort. This home has solar along with low taxes adding to its overall affordability. Located near schools, shopping, restaurants and easy access to freeways for commuters.
Click to interact with map
Listed by COLLEEN HORGAN with COLDWELL BANKER REALTY (951) 682-1133
Property Type
Single Family Residence
Status
Active
MLS Number
IV26081651
Year Built
1988
Lot Size
4,800 sq ft