$876,000
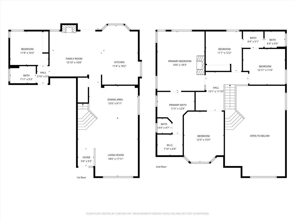
ETIWANDA SCHOOL DISTRICT! NO HOA! ONE BEDROOM DOWNSTAIRS! Rare opportunity to own a 2,369 sq ft home at the end of a quiet cul-de-sac, directly across from the elementary school—an ideal blend of comfort and convenience. Step into a light-filled living room with soaring ceilings and wood laminate flooring, flowing seamlessly into the formal dining area. The kitchen features granite countertops, a large island with 5-burner cooktop, and open access to the breakfast nook and inviting family room with fireplace. The main level also includes one bedroom and a full bathroom, offering excellent flexibility for guests or multi-generational living. Upstairs, the primary suite offers its own fireplace and a spacious en-suite with dual sinks, walk-in closet, soaking tub, and separate shower. Two additional bedrooms share a Jack-and-Jill bathroom. The oversized bonus room with mountain views is a true highlight—perfect for a game room, media space, home office, or potential 5th bedroom. Enjoy a low-maintenance backyard with an Alumawood covered patio, ideal for relaxing or entertaining. Additional upgrades include a tankless water heater and exterior security system. Located in the highly rated Etiwanda School District, close from parks, trails, shopping, and Victoria Gardens, with easy commuter access. No HOA. Homes in this location rarely come up—schedule your private showing today!
Click to interact with map
Listed by YIN DENG with Pinnacle Real Estate Group (626) 888-9808
Property Type
Single Family Residence
Status
Active
MLS Number
WS26080738
Year Built
1992
Lot Size
3,899 sq ft