$475,000
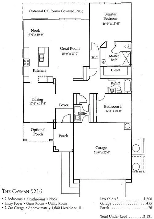
Sun City Palm Desert - Cayman. This popular greatroom floorplan offers 2 bedrooms, 2 bathrooms and a versatile den, ideally situated on a quiet cul-de-sac street that conveniently terminates at the Sunset View Clubhouse. Positioned on a desirable corner lot, the home enjoys a spacious, lushly landscaped north facing rear yard featuring an extended patio, alumawood patio cover, mature ocotillo and peek-a-boo mountain views. Inside, tile flooring is used extensively. The kitchen is thoughtfully designed with corian counters with rounded edges, a glass tile backsplash, and a chef's island with breakfast bar. The adjoining dining area features a bay slider that opens to the rear patio, enhancing indoor-outdoor living. The den/office is generously sized and finished with attractive wood-like tile flooring. The primary suite includes a walk-in closet with mirrored wardrobe doors and an en-suite bathroom with dual sinks and a stall shower with glass enclosure. The guest bedroom also features mirrored wardrobe doors, and the guest bathroom includes a tub/shower combination. The laundry room is conveniently located inside the home. Additional features include a spacious two-car garage with built-in storage and a Lennox AC system installed in 2019.
Click to interact with map
Listed by Michael Horne with Compass (760) 779-4495
Property Type
Single Family Residence
Status
Active
MLS Number
219146275DA
Year Built
2000
Lot Size
7,841 sq ft