$585,000
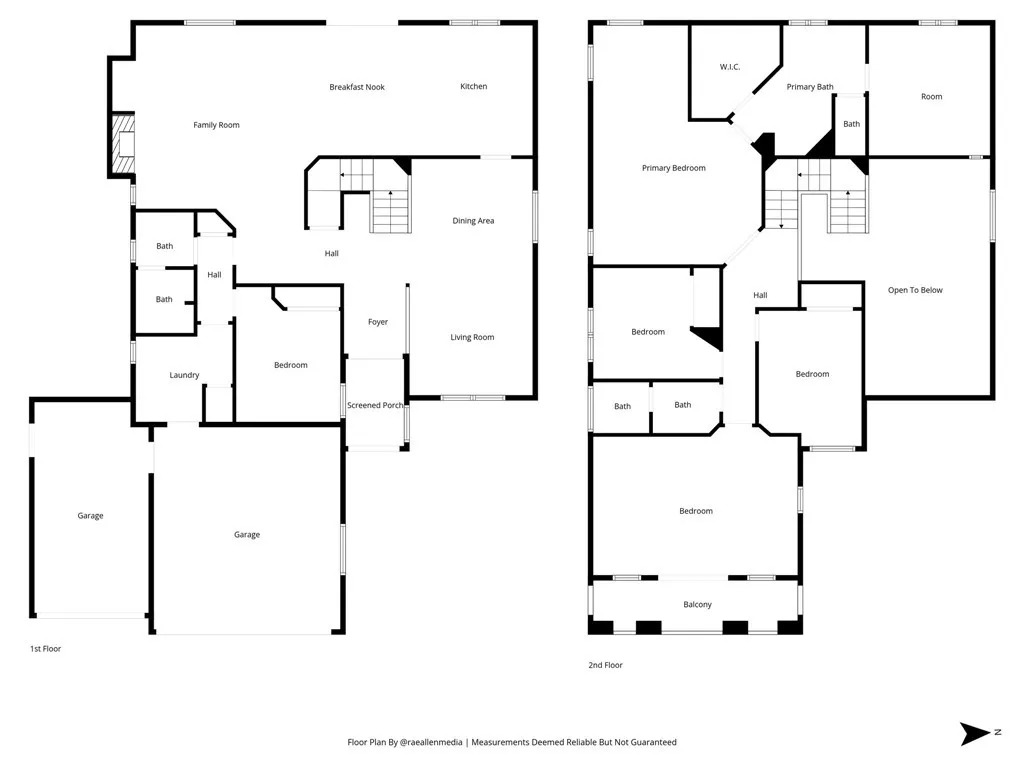
Spacious Victorville Home with Flexible Living This 5 bedroom, 3 bathroom home offers approximately 2,900 sq ft of living space on a 10,200 sq ft lot. The open floor plan includes a convenient downstairs bedroom and full bath—ideal for guests or multi-generational living. Upstairs features additional bedrooms plus a versatile loft conversion, perfect as a large bedroom, bonus room, or office. The primary suite includes a private retreat currently been used as a bedroom. Enjoy new wood flooring, two newer AC units, and leased solar for improved energy efficiency. The property also offers RV parking and is conveniently located near shopping, dining, and everyday amenities, including 15 minutes to the freeway for easy commute. A must-see with plenty of space and potential!
Click to interact with map
Listed by Maria Rideaux with Elevate Real Estate Agency (909) 266-1777
Property Type
Single Family Residence
Status
Active
MLS Number
CV26077097
Year Built
2004
Lot Size
10,202 sq ft