Skip to main content
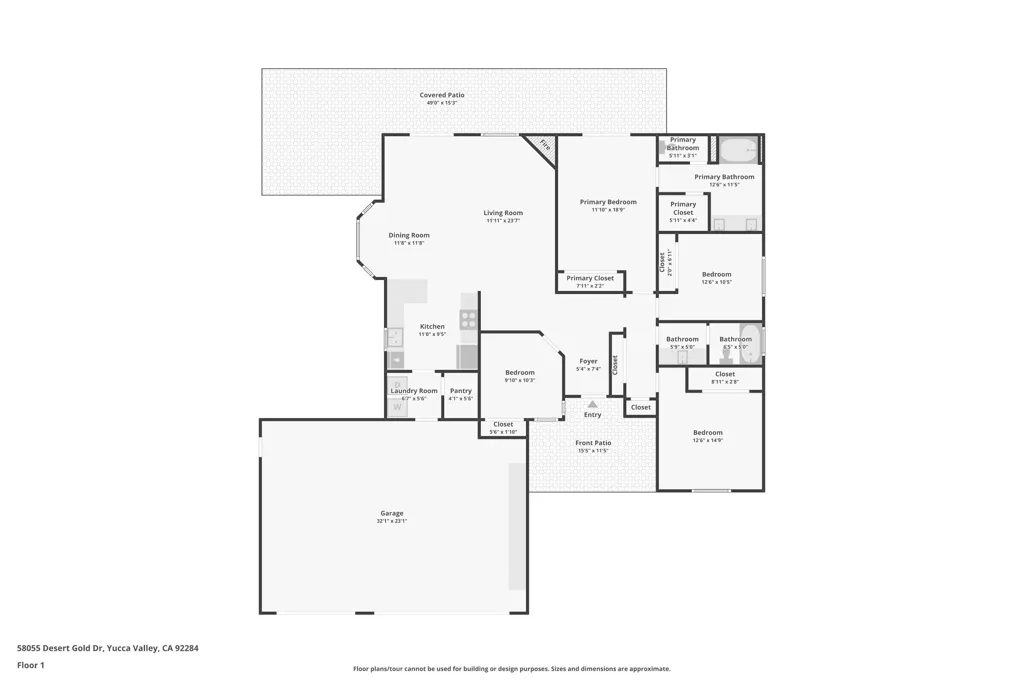
58055 Desert Gold Drive, Yucca Valley, California 92284 - $515,000 | Allan Real Estate Investments