$344,900
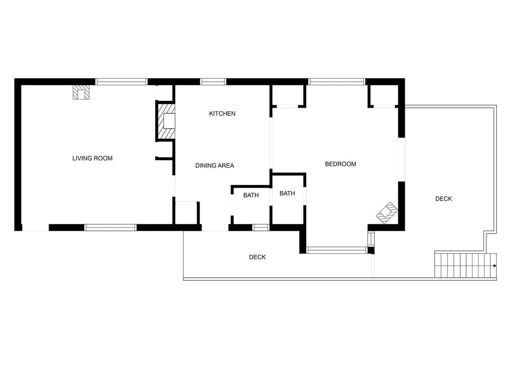
''Whispering Pines'' is a timeless mountain retreat where classic 1958 character meets peaceful forest living. Wrapped in warm knotty pine walls, ceilings, and original kitchen cabinetry, this cabin radiates authentic charm that's becoming harder to find. Step inside to an inviting open kitchen and dining area, where vaulted ceilings and a brick fireplace create a cozy yet airy gathering space. Just beyond, the living room continues the rich pine aesthetic, anchored by a propane stove and bathed in natural light from multiple windows. The perfect setting for snowy evenings or quiet mornings with coffee. The generous bedroom offers privacy and convenience with direct access to the 3/4 bath. A glass door leads you onto the back deck, where you'll overlook a spacious backyard dotted with pines and oaks. An ideal setting for entertaining, gardening, or simply letting the mountain air melt the day away. Tucked close to town, Idyllwild County Park, and scenic hiking trails, this property offers the perfect balance of accessibility and escape. Nature awaits at Whispering Pines where your mountain sanctuary is calling!
Click to interact with map
Listed by Shannon Johnston with Robin Oates Real Estate Inc (951) 659-1997
Property Type
Single Family Residence
Status
Active
MLS Number
219146188DA
Year Built
1958
Lot Size
7,405 sq ft