$297,500
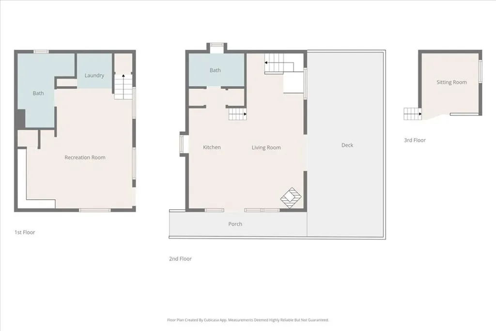
Nestled in a beautiful forest setting, 697 Mormon Springs Rd offers the perfect blend of mountain charm and convenience—just minutes from town and Lake Gregory. Inside, you’ll find an inviting living space highlighted by open beam ceilings and a cozy wood-burning stove, creating the ideal atmosphere for relaxing cabin living. The home features refreshed bathrooms, a spacious laundry room, and a huge primary bedroom that provides a comfortable private retreat. A charming sleeping loft adds extra flexibility for guests or additional living space. Step outside and enjoy the peaceful surroundings, complete with a seasonal stream that enhances the serene, natural setting. Whether you’re looking for a full-time residence, weekend getaway, or investment opportunity, this home captures the best of Crestline living. Don’t miss your chance to own a slice of the mountains!
Click to interact with map
Listed by Harley Adams with DYNASTY REAL ESTATE (909) 605-2500
Property Type
Single Family Residence
Status
Active
MLS Number
CV26076775
Year Built
1962
Lot Size
3,772 sq ft