Skip to main content
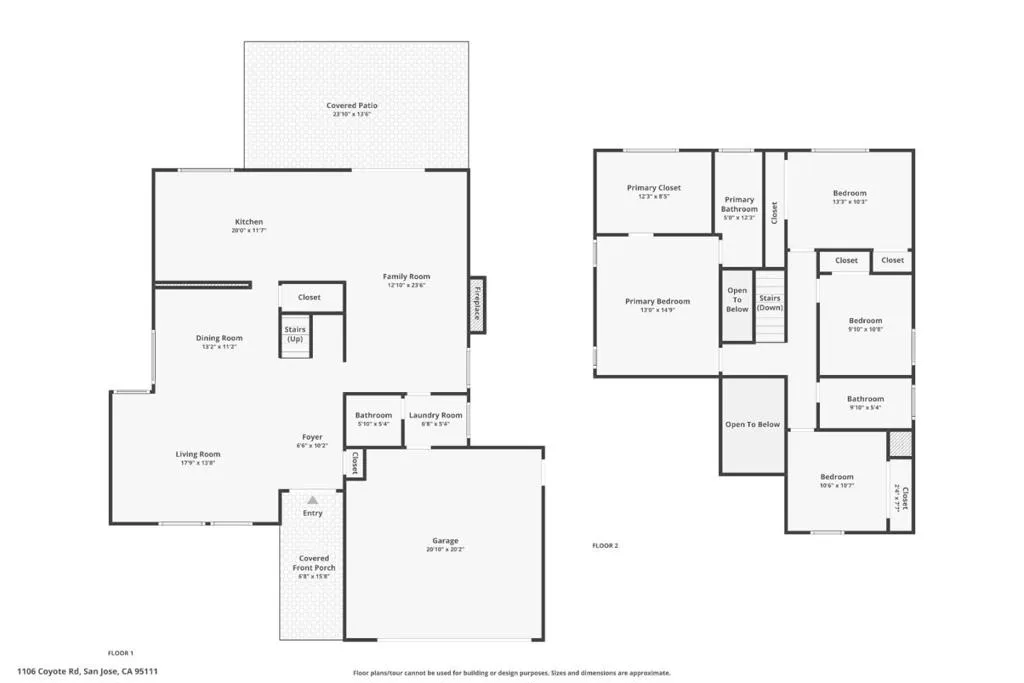
1106 Coyote Road, San Jose, California 95111 - $1,448,800 | Allan Real Estate Investments