Skip to main content
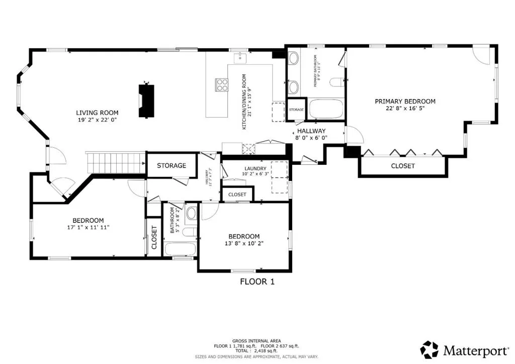
537 Mountain View Avenue, Mountain View, California 94041 - $3,298,000 | Allan Real Estate Investments