$175,000
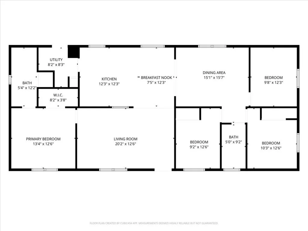
Rare opportunity to own a 4-bedroom manufactured home on a permanent foundation in the desirable Paradise Pines community of Magalia—fully lendable and move-in ready. Recent updates include a new roof installed in Summer 2023, newer exterior paint, and over $4,000 in tree work completed to enhance fire safety and peace of mind. This 1,560 square foot home on a 0.24-acre lot offers a spacious and flexible layout, featuring a bonus room currently used as a dining area and previously enjoyed as a family/play room, along with a fully fenced backyard and detached shed for additional storage. As part of the Paradise Pines Property Owners Association, residents enjoy access to an array of amenities including a community pool, tennis courts, picnic areas, scenic walking and hiking trails, and year-round community events. Comfort, functionality, and community come together in this affordable offering—don’t miss it!
Click to interact with map
Listed by Sheerene Mehrizi with Century 21 Select Real Estate Inc. (530) 363-8662
Property Type
Manufactured On Land
Status
Pending
MLS Number
OR26072994
Year Built
1996
Lot Size
10,454 sq ft