$3,500
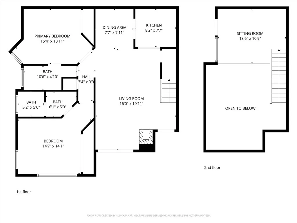
Check out this upper-level residence in the Le Parc community of Chino Hills. Sitting on the second floor, you have the luxury of having no one above you. With high-ceilings and an open-concept layout this creates a feeling of being in a larger space, while enjoying all the natural light this home provides. On the main level you will have two good sized bedrooms and two full bathrooms, while a versatile loft offers the perfect setting for a third bedroom, private office, or creative retreat. The partial open concept kitchen has granite countertops, stainless steel appliances and bar seating. Enjoy the convenience of in-unit laundry and enjoy the outdoors with two private balconies. This residence also includes a detached two-car garage and has easy access to the 60 and 71 freeways. You will be located right across from Costco, Lowe's, Harkin's Theatres, 85C Bakery and many more.
Click to interact with map
Listed by Kristen Higa with Anvil Real Estate (949) 776-1185
Property Type
Condominium
Status
Active
MLS Number
OC26071465
Year Built
1985
Lot Size
1,146 sq ft