$1,690,000
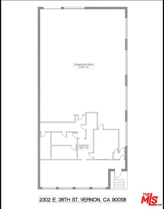
Proudly presenting 2302 E 38th St, a prime industrial asset in the heart of Vernon. Discover this 5,000 SF space that is absolutely perfect for manufacturing, assembly, warehousing, or logistics. Approximately 1,800 SF is dedicated to a showroom and office space, complete with two separate bathrooms. The property features a high ceiling and a 400-amp power capacity, supporting robust operations. Dock-high loading (rare for this size) ensures strategic efficiency in seamless logistics with smooth shipping and receiving, while a fully fenced, gated parking yard enhances convenience and safety. Additionally, the neighboring security outpost provides added peace of mind. Low-cost Vernon utilities are the cherry-on-top providing operational savings in the range of 20-30%. Seize this versatile space wonderfully suitable as both an investment and also an owner-use opportunity ideal for SBA 504 financing with 10% down payment.
Click to interact with map
Listed by MiJeong Kim with Mi Jeong Kim (213) 503-8070
Property Type
Commercial Sale
Status
Active
MLS Number
26672933
Year Built
1950
Lot Size
7,079 sq ft