$949,900
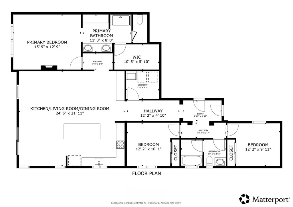
Welcome to 4700 E Washington Ave, nestled within the desirable gated community of Orchard Walk in Orange. Built in 2018, this stunning single-level residence offers 3 bedrooms and 2 bathrooms across 1,526 square feet of thoughtfully designed living space. Ideally positioned as a private end unit and attached on only one side, the home enjoys an abundance of natural light and the feel of a detached single-family residence. An inviting hallway draws you into the open-concept great room that seamlessly blends the kitchen, dining, and living areas. The chef-inspired kitchen features a large center island perfect for entertaining, while the dining space opens to a charming patio, ideal for indoor-outdoor living. The spacious primary suite offers a peaceful retreat with an en suite bathroom that includes a separate vanity area, walk-in shower, and walk-in closet with organizers. Two additional bedrooms are thoughtfully situated in their own private wing near the front of the home. Additional highlights include a convenient indoor laundry room with a sink, direct access to the attached two-car garage, and modern finishes throughout. Residents of Orchard Walk enjoy resort-style amenities including an outdoor fireplace, BBQ area, community garden, and the security of a gated entrance. Conveniently located near shopping, dining, and major freeways. Don't miss this rare opportunity!
Click to interact with map
Listed by Min Seo with Redfin (877) 973-3346
Property Type
Condominium
Status
Active
MLS Number
OC26068809
Year Built
2018
Lot Size
3.99 acres