Skip to main content
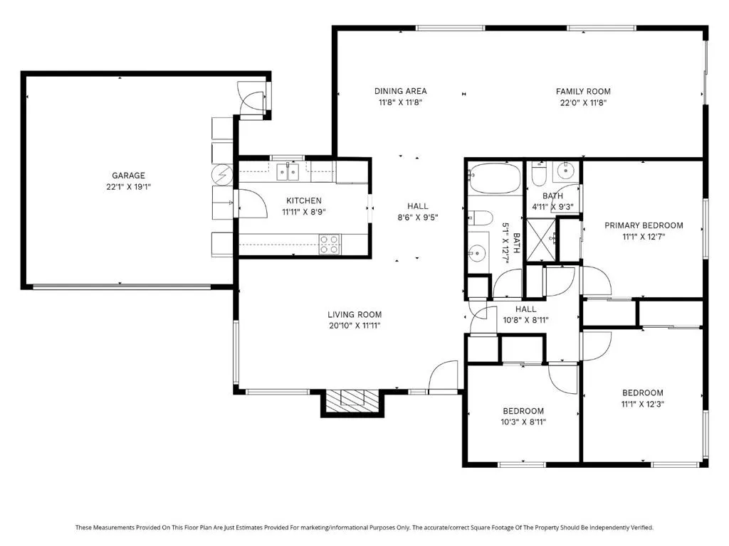
3240 Santa Maria Avenue, Santa Clara, California 95051 - $1,588,888 | Allan Real Estate Investments