$784,320
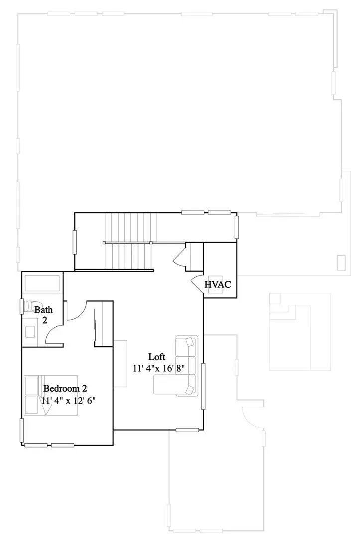
NEW CONSTRUCTION! Includes Upgraded Flooring! Solar System Included! Ready for Quick Move-in! This new two-story home offers intimate outdoor experiences with an inviting front courtyard and pool. A bedroom with an en-suite bathroom is accessible from the courtyard, and the main home is host to an inviting open-concept layout shared between the kitchen, living and dining areas. The luxurious owner’s suite offers a private retreat at the back of the home, while an additional bedroom shares the second floor with a versatile loft. The kitchen features Miami Vena white quartz countertops. Canyon View is a new community of single-family homes for sale in Palm Springs, CA. Residents will enjoy access to an onsite park and an array of shopping, dining and entertainment options in downtown Palm Springs, just five miles away. Plan a fun-filled weekend trip to Agua Caliente Casino for upscale gaming and entertainment, or head out to one of the several local golf courses to work on your game.
Click to interact with map
Listed by Todd Myatt with Century 21 Masters (888) 862-1194
Property Type
Single Family Residence
Status
Active
MLS Number
SW26069622
Year Built
2026
Lot Size
4,003 sq ft