$4,995,000
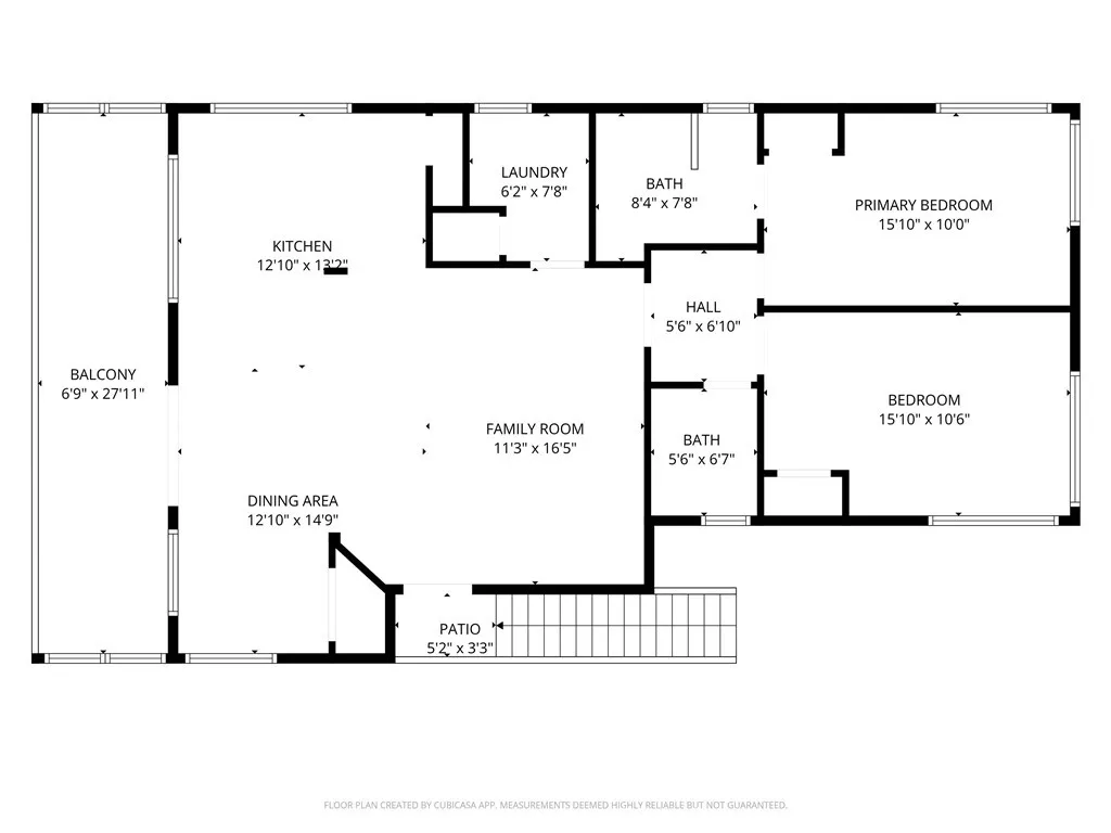
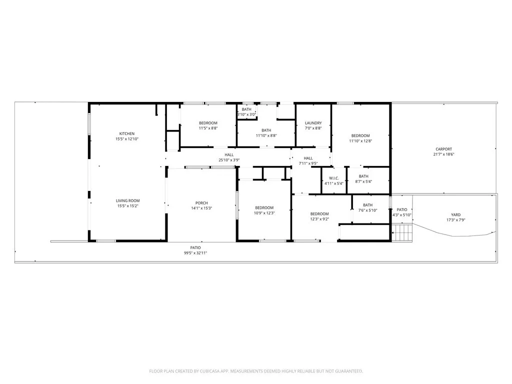
Rare oceanfront home with private beach access in the guard gated community of Beach Road in Dana Point. Panoramic ocean views from this 2,354 sq.ft. 6 bed, 4 bath home on one of the larger lots (7,841 sq.ft.) in the Beach Rd. community. Property has 39' of beachfront and over 200' of depth. Home is split into two private entrance units consisting of a 4 bed 2 bath lower with kitchen, laundry, living and bedrooms and an upper 2 bed 2 bath unit with patio that provides never-ending white water views, private kitchen, laundry, living and bedrooms. In 2007 the owners took this home down to the studs and starting over from the copper plumbing all the way to a new roof and everything in between. Just down the beach from Dana Point Harbor which is going through a grand revitalization project. Panoramic ocean views, currently holds short-term rental permits from the City of Dana Point. Live in one unit and rent the other or continue to enjoy the great rental income this property generates. Great redevelopment potential.
Click to interact with map
Listed by Tyler Kropf with BAC Real Estate Group, Inc. (949) 679-2340
Property Type
Single Family Residence
Status
Active
MLS Number
NP26068473
Year Built
1958
Lot Size
7,841 sq ft