$1,129,000
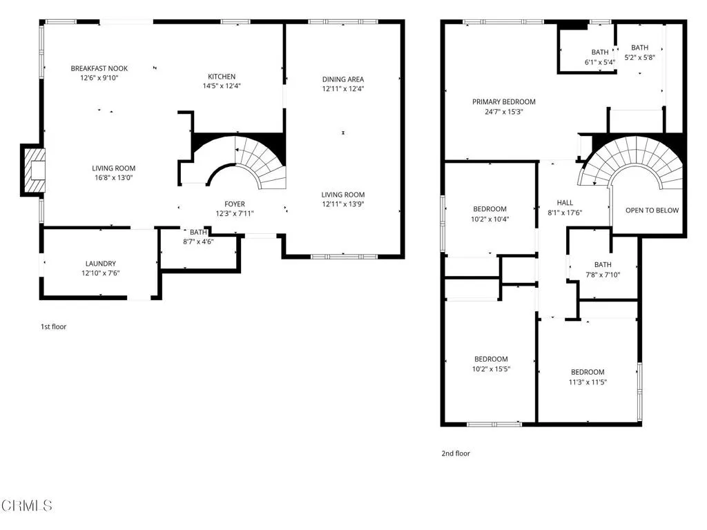
This gorgeous and immaculate home is located in the desirable area of Mission Oaks is a must see. Upon entering, you will appreciate the vaulted ceilings encapsulated with crown molding in some of the living areas. There is ample recessed lighting throughout this home and with newer lighting in the kitchen and family room. Most of the home has been freshly painted. The kitchen has been fully updated with custom cabinets are made of white solid wood and offers self closing drawers, pull out drawers in the pantry and throughout. The counter tops are of a with quartz and with a ceramic back splash. Appliances and fixtures are of stainless steel, This home offers double paned European windows and newer doors. The floors consist of wood and ceramic flooring throughout. The family room offers a cozy fireplace and with a built in desk for those who work out of the home. The Master bedroom is large with ample closet space. All restrooms are gorgeously remodeled. Both yards are Beautifully landscaped. The front yard offers a nice artificial turf for low maintenance. The front yard has also been newly paved with beautiful pavers. This gorgeous home offers an array of fragrant rose bushes and a gorgeous plumerias and other plants in the front yard. The backyard offers an amazing swimming pool for those warm summer days and a lush garden that consists of Mango, Pomegranate, Guava, Curry, Persimmon, and Apricot trees and a fragrant Indian Jasmine. Again this home is a must see. Come by and make it yours.
Click to interact with map
Listed by Leticia Pinedo with Leticia Pinedo, Broker (805) 702-2025
Property Type
Single Family Residence
Status
Active
MLS Number
V1-35504
Year Built
1978
Lot Size
7,405 sq ft