$1,470,000
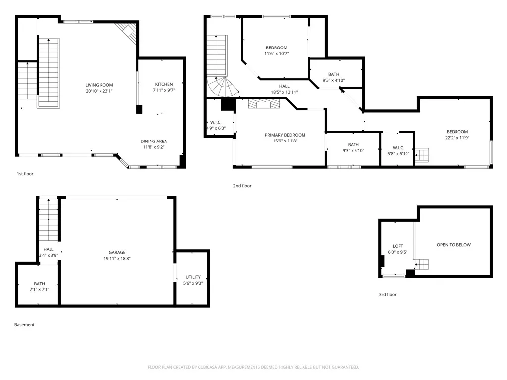
Belleza Del Mar The Jewel Of Redondo Beach Set in the coastal heart of Catalina Avenue, this private townhome is nestled within an intimate 5-residence Mediterranean-style community, offering a rare blend of privacy, character, and elevated beach living.Approximately 1,594 square feet, this thoughtfully designed residence features 3 bedrooms and 2.5 bathrooms across a multi-level floor plan ideal for both everyday living and entertaining. The entry level includes a 2-car garage, laundry area, and guest bath. The second level showcases an open-concept living room and kitchen filled with natural light, while the upper level offers three spacious bedrooms and two full bathrooms, providing comfort and separation for guests or family.Enjoy ocean and coastline views from the primary suite and expansive rooftop deck a perfect setting for entertaining or taking in the stunning sunsets over the Pacific.Ideally located just steps from the beach and moments from the shops and dining of Riviera Village, this residence offers a lifestyle defined by walkability, convenience, and refined coastal charm.With close proximity to parks, award-winning schools, and an array of beach lifestyle activities including surfing, biking, volleyball, boating, and paddleboarding, this home presents a peaceful yet vibrant seaside retreat.Refreshed, refined, and ideally positioned, Belleza Del Mar is a rare opportunity to own a true jewel along one of Redondo Beach's most desirable coastal corridors.
Click to interact with map
Listed by Avraham Khordian with Living In America Financial
Property Type
Townhouse
Status
Active
MLS Number
26671743
Year Built
1988
Lot Size
0.49 acres