Skip to main content
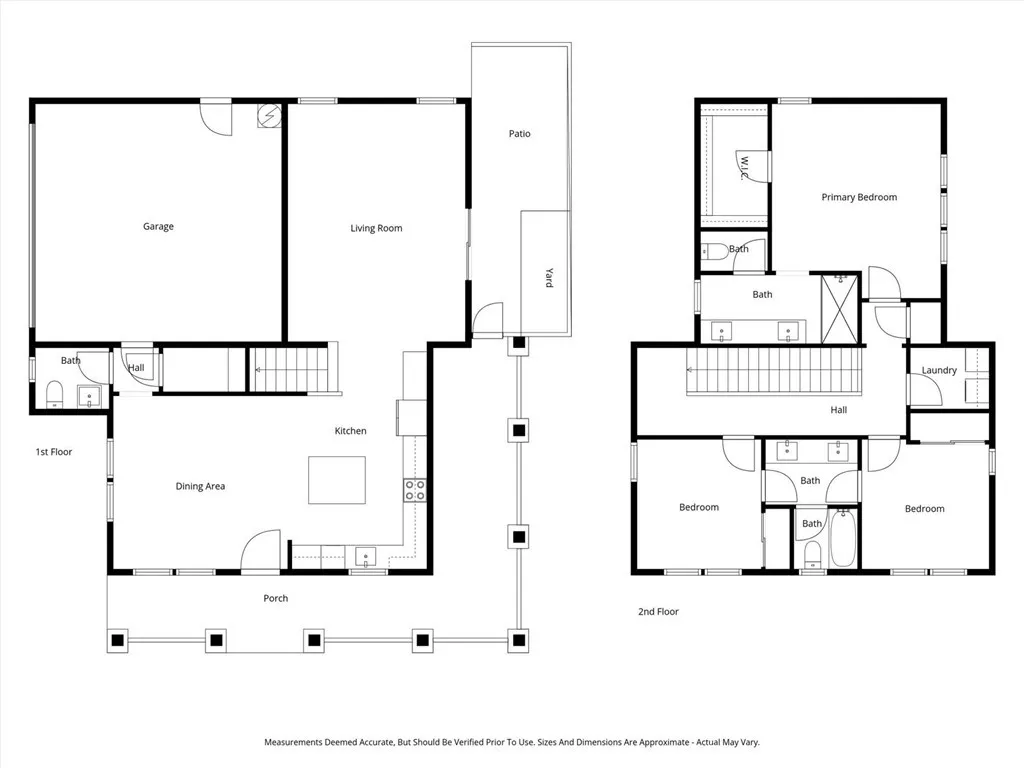
165 Earthwood Lane, San Luis Obispo, California 93401 - $1,049,000 | Allan Real Estate Investments