$848,000
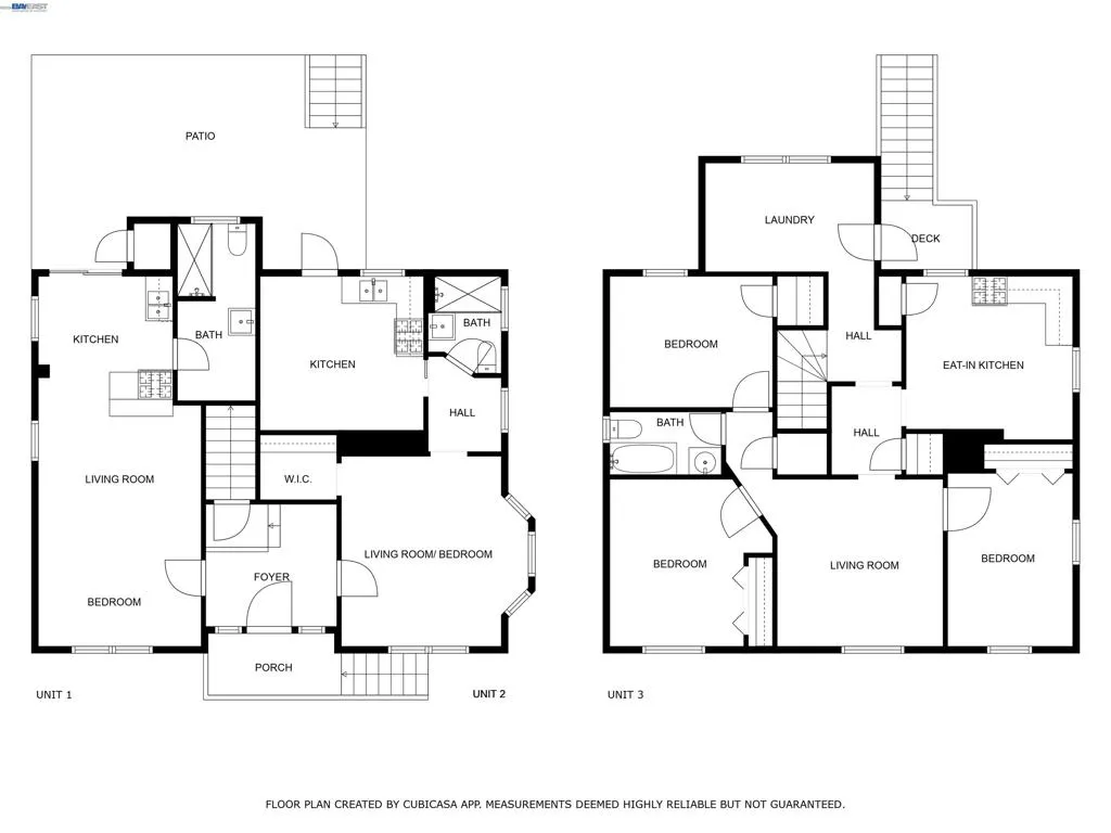
Exceptional Investment Opportunity in a Prime Oakland Location, Strong rental potential with immediate income opportunity. Excellent opportunity to live in one unit while generating rental income to help offset your mortgage. This property offers the perfect blend of urban convenience and neighborhood charm. Enjoy an unbeatable location blocks from Whole Foods and Lake Merritt. Surrounded by popular restaurants, cafés, boutique shopping, and entertainment, this vibrant neighborhood delivers a true Oakland lifestyle. Commuters will appreciate easy access to BART, AC Transit, and major freeways connecting to San Francisco and the greater Bay Area. Unit Breakdown: • Unit 1: Charming studio featuring an updated kitchen with granite countertops, a dedicated study nook, upgraded windows, and direct access to the backyard. • Unit 2: 2025 remodeled studio with a modern kitchen and bath, granite countertops, stylish tile, updated fixtures, washer/dryer hookups, upgraded windows, and backyard access. • Unit 3: Spacious upper-level 3-bedroom, 1-bath unit with an eat-in kitchen, in-unit laundry, and access to outdoor space. More Property Highlights: • Off-street parking • Fully fenced front and backyard offering privacy and usable outdoor space
Click to interact with map
Listed by Rose Krinks with BHHS Drysdale Properties (510) 523-1144
Property Type
Triplex
Status
Active
MLS Number
41129011
Year Built
1932
Lot Size
4,408 sq ft