$284,900
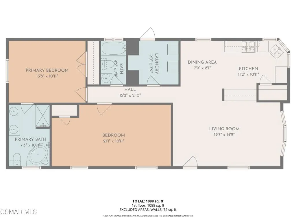
Located in one of the most desirable mobile home communities, the highly sought-after Friendly Village 55+ community, this newer home (built in 2005) offers comfort, convenience, and an active lifestyle all in one. This 2-bedroom, 2-bath residence features a bright, open layout that feels welcoming from the moment you step inside. The spacious living and dining areas flow seamlessly together, creating an ideal setup for both everyday living and entertaining. Originally configured as a 2-bedroom plus den, the flexible floor plan offers the potential to easily recreate a third living space, home office, or guest area if desired. Enjoy your morning coffee on the front patio, while the covered carport provides parking for multiple vehicles and includes a convenient storage shed. Friendly Village is known for its beautifully maintained grounds and exceptional amenities designed to support a vibrant, social lifestyle. Residents enjoy access to a resort-style pool and spa, fitness center, billiards room, BBQ and picnic areas, putting green, dog run, and more. RV parking and storage are also available (subject to availability and extra fee). Conveniently located near shopping, dining, parks, and everyday essentials, this home offers the perfect blend of tranquility and accessibility. Welcome to easy living in one of Simi Valley's premier 55+ communities.
Click to interact with map
Listed by Renee Delgado with Altera Real Estate Services (805) 402-8917
Property Type
Manufactured In Park
Status
Active
MLS Number
226001414
Year Built
2005
Lot Size
3,149 sq ft