Skip to main content
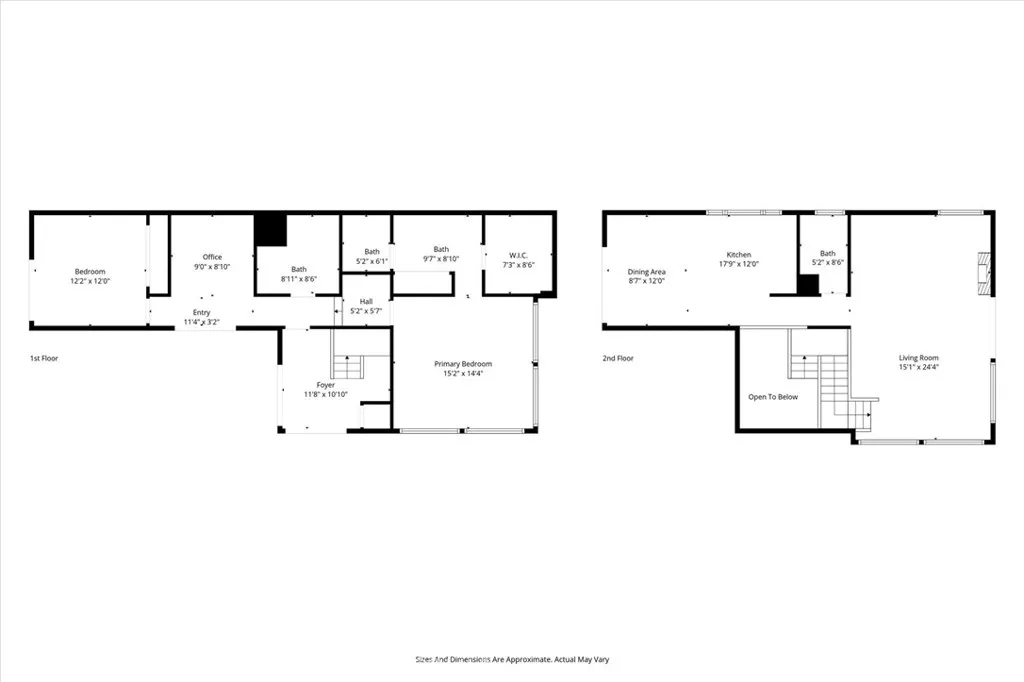
3740 Barbara, San Pedro, California 90731 - $1,550,000 | Allan Real Estate Investments