$699,000
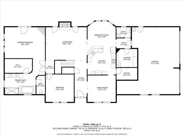
Welcome to this custom-built, one-owner home nestled on 7+ rolling acres of privacy and space. This nearly 3,200sqft two-story home offers 4 bedrooms plus an office (or use all 5 as bedrooms), 4 bathrooms, and primary suites on both levels. Downstairs primary suite includes a cozy fireplace, separate garden tub and shower, dual sinks, and a spacious walk-in closet for ultimate comfort. The spacious kitchen features a restaurant-style stove, formal dining room, and breakfast nook, perfect for the culinary enthusiasts. Enjoy the large laundry room with built-in desk, storage cabinets, and a fold-down ironing board—designed for convenience. Home is wired with CAT5for modern connectivity and includes a Transfer Switch kit for future generator backup power or off grid power capability. A 480+ sq ft bonus room offers potential for a future ADU or use as a hobby room, private gym, game room or guest space. Outside, enjoy the oversized 3-car garage, covered front and back porches, expansive 2-tier back deck for entertaining, garden area, and room for all your toys. Finished with durable Hardie board siding, this home blends luxury and functionality in a peaceful country setting.
Click to interact with map
Listed by Barbara Dancel with HIVE Real Estate Group, Inc (530) 505-4313
Property Type
Single Family Residence
Status
Active
MLS Number
SN26061149
Year Built
2005
Lot Size
7.37 acres