Skip to main content
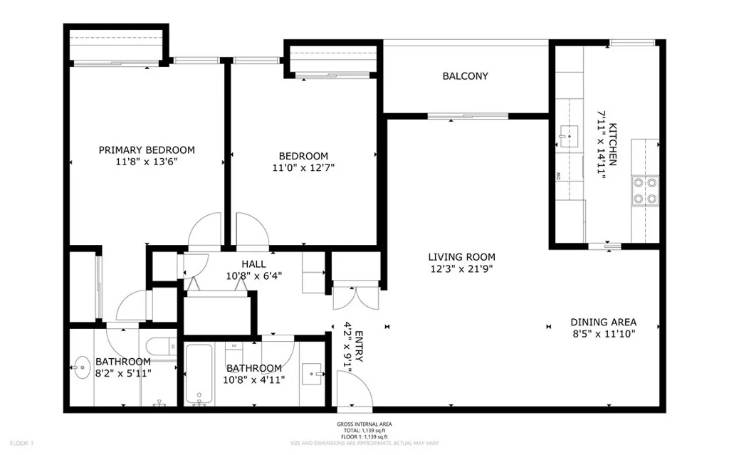
4041 Via Marisol 313, Los Angeles, California 90042 - $599,000 | Allan Real Estate Investments