Skip to main content
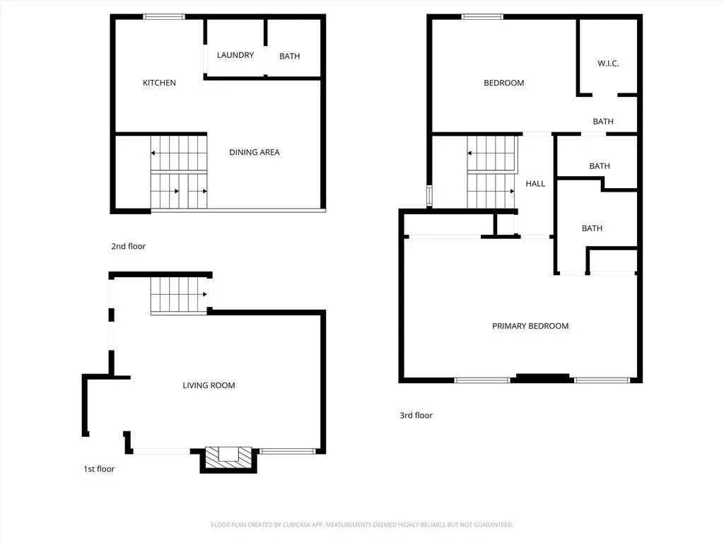
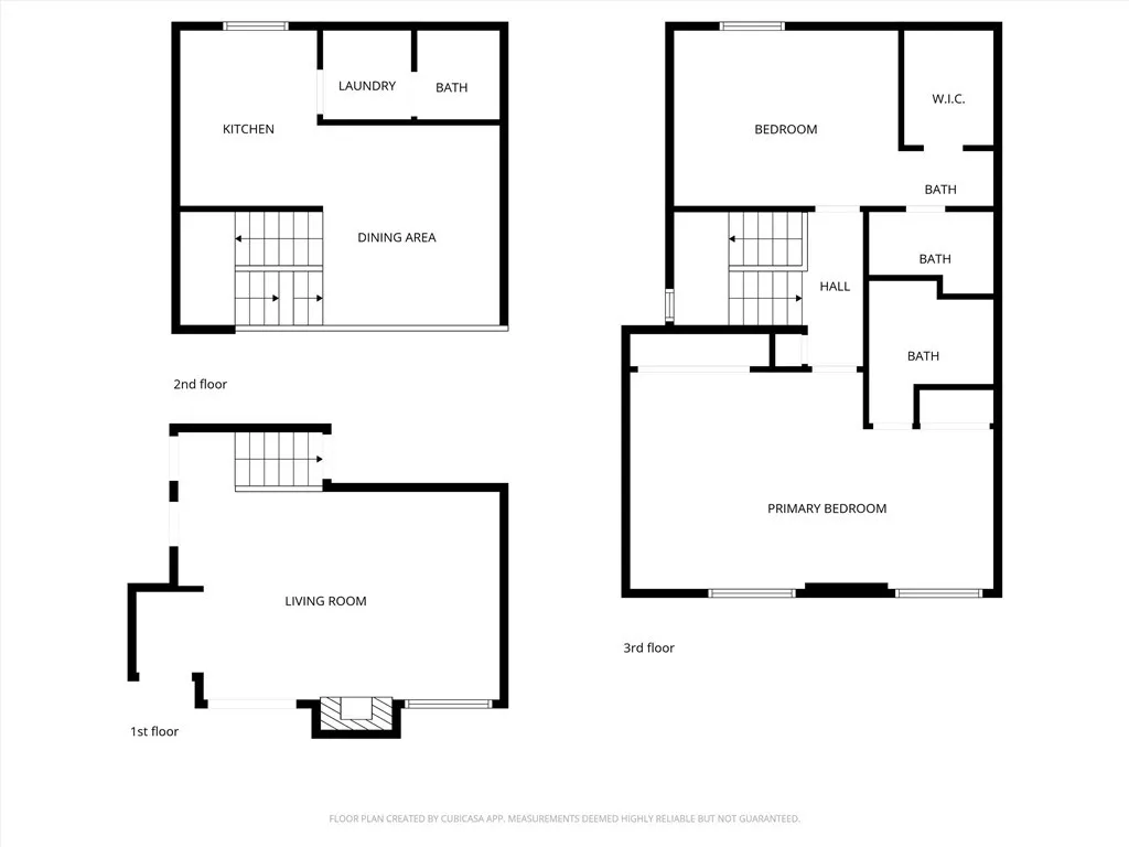
2000 W Palmyra 30, Orange, California 92868 - $675,000 | Allan Real Estate Investments