Skip to main content
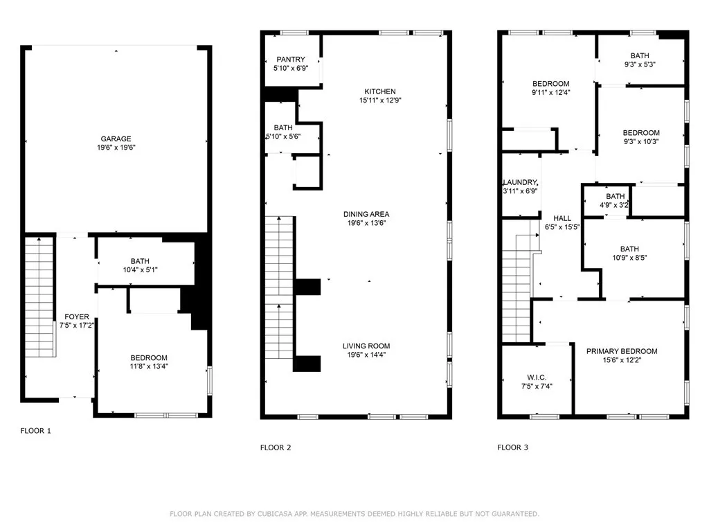
27113 Valley Oak Pl, Valencia, California 91381 - $4,495 | Allan Real Estate Investments