Skip to main content
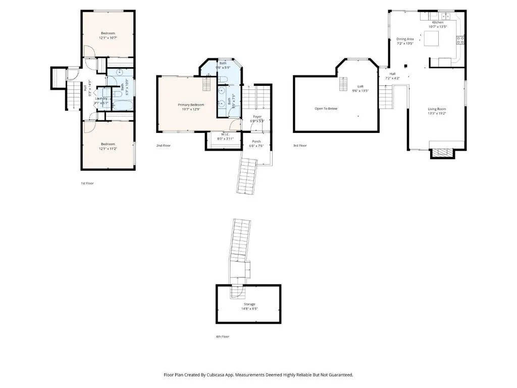
230 Miraflores Road, Scotts Valley, California 95066 - $1,290,000 | Allan Real Estate Investments