Skip to main content
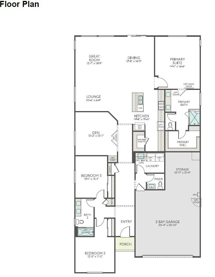
5323 Guava Lane, Banning, California 92220 - $523,000 | Allan Real Estate Investments