$499,000
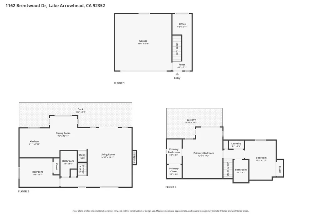
Welcome to your next Lake Arrowhead retreat! This level-entry home sits on a plowed and county-maintained road, with an attached garage that makes getting in and out simple year-round. It also has a whole-house generator with an automatic transfer switch, so you don’t have to worry when the weather rolls in. The middle floor is where the home really shines. Windows bring in tons of natural light and frame wide-open views of the trees, valley and high desert. The kitchen, dining, and living space all flow together, making it easy to host or just enjoy a quiet night in. The kitchen features a newer stainless steel gas range and plenty of space to cook and gather. Step out onto the deck and you’ll see what this home is all about- the fresh air surrounded by trees- it is the kind of spot where mornings start with coffee and evenings end with a glass of wine, watching the sky change colors. Downstairs, the primary suite feels like its own little retreat with a private balcony—perfect for slow mornings or winding down after a day on the lake. You’ll also find another bedroom, a full bathroom, and a dedicated laundry area on this level, giving everyone their own space. The home has been well cared for, with updates to plumbing, lighting, electrical, and hardware throughout. There’s even a sauna—ideal after a cold day on the slopes or a long hike. And the best part—this home comes with full Lake Arrowhead lake rights and is being sold fully furnished. You can literally show up with a toothbrush and start enjoying it right away. Homes that offer this kind of access, ease, and setting don’t come around often- schedule your private showing today!
Click to interact with map
Listed by Julia Bauerschmidt with Real Broker (616) 248-6434
Property Type
Single Family Residence
Status
Active
MLS Number
IG26060846
Year Built
1992
Lot Size
0.26 acres