Skip to main content
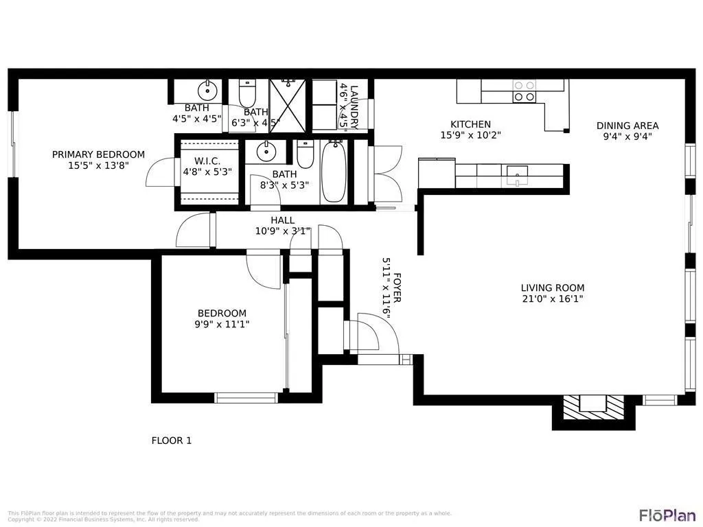
129 Rubicon Circle, Danville, California 94526 - $824,950 | Allan Real Estate Investments