$998,000
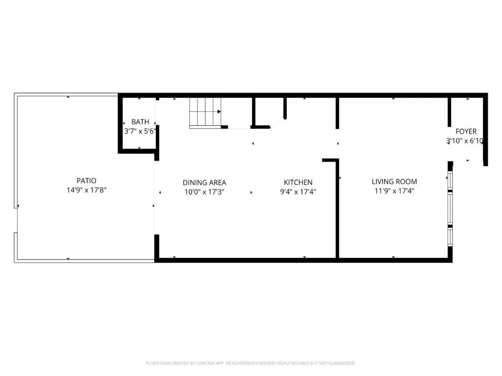
Welcome to this charming and beautifully maintained 2-story townhouse in the highly desired Sunset Oaks community in Sunnyvale! Located next to top-rated schools, including Louis E. Stocklmeir Elementary, Cupertino Middle, and Fremont High. This bright and inviting 2-bedroom 2.5-bathroom home offers 1,300 sq ft of comfortable living space with a functional floor plan, including a private back patio. The spacious living room flows seamlessly into the dining area and well-appointed kitchen, which features granite slab countertops, ample cabinetry, recessed lighting, and a convenient breakfast bar. Upstairs, the primary suite includes recessed lighting and balcony access, while the second bedroom offers abundant natural light and a spacious closet. Additional highlights include an interior laundry area with storage and a large attic providing extra storage space. A private courtyard patio offers a perfect setting for outdoor relaxation or entertaining, with direct access to the detached on-car garage. Enjoy access to community amenities, including a swimming pool, sauna, and clubhouse, all surrounded by mature trees and well-maintained grounds. Conveniently located near shopping, dining, parks, and major tech campuses, including Apple, LinkedIn, and Google.
Click to interact with map
Listed by David Kim with Compass (650) 941-1111
Property Type
Townhouse
Status
Active
MLS Number
ML82039037
Year Built
1974
Lot Size
1,024 sq ft