$569,900
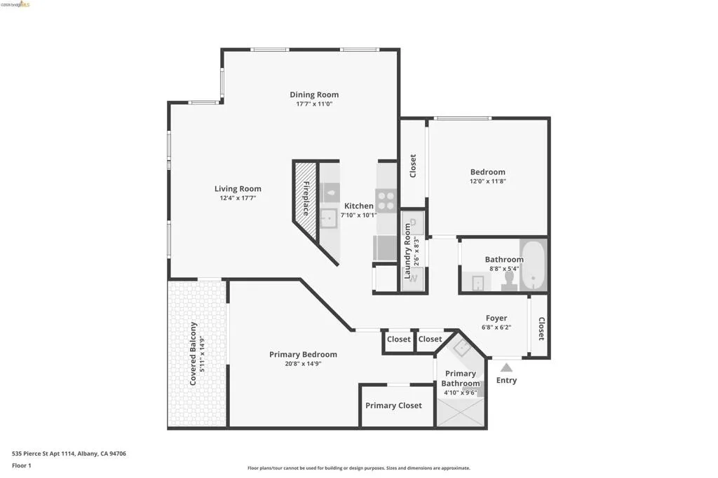
PRICE REDUCTION! Enjoy Resort-Style Living at Bayside Commons in this sunny, bright & impeccably maintained Albany condo that combines comfort and convenience! 2nd Floor End-Unit in a clean and welcoming gated community. Access the home without ever going up a stair! Freshly painted with new carpet, it offers a clean, updated vibe and a welcoming feel. In-unit Laundry and one parking space included. Relax with a lovely courtyard view. Bayside Commons is truly resort-style living with amenities galore: heated community pool, hot tub, sauna, tennis courts, basketball court, fitness center, playground and more! There’s something here for everyone. With so much to offer at an unbeatable price, this is your chance to join one of the East Bay’s vibrant and welcoming condo communities. Close to Solano Ave, El Cerrito Plaza, restaurants, the movies, easy freeway access, entertainment, and more! Including proximity to San Francisco, but without those San Francisco prices! No Open Houses. Shown by Appointment only.
Click to interact with map
Listed by Tanja Odzak with eXp Realty of California (888) 584-9427
Property Type
Condominium
Status
Active
MLS Number
41127103
Year Built
1988
Lot Size
7.64 acres