Skip to main content
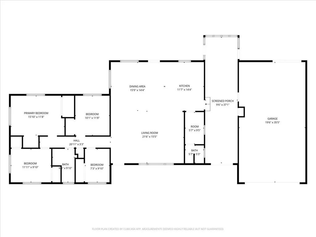
3658 Rodgers, Chico, California 95928 - $575,000 | Allan Real Estate Investments