$989,000
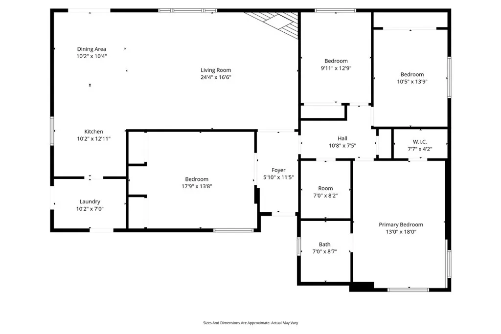
Welcome to this beautifully updated 4-bedroom, 2-bathroom home offering bright, open living in the heart of the San Fernando Valley. With fresh landscaping, a crisp white exterior with brick accents, and a newly installed modern gate for added privacy, the home offers great curb appeal from the moment you arrive. Step inside to an inviting open layout with beamed ceilings, recessed lighting, new vinyl flooring throughout, and abundant natural light. The spacious living room is anchored by a striking white brick fireplace and flows seamlessly into the kitchen, creating an ideal space for everyday living. The kitchen features white cabinetry, stainless steel appliances, a deep farmhouse sink, and bar seating. Adjacent to the kitchen is a convenient laundry room with a washer and dryer, pantry storage, and direct access to the backyard. One of the secondary bedrooms sits just off the living area behind elegant French doors, offering dual closets and views of the front yard. Two additional bedrooms are located down the hallway alongside a guest bathroom with dual vanities, quartz countertops, and ample cabinetry for storage. The bright primary suite provides a relaxing retreat, featuring vaulted ceilings, a walk-in closet, and an en-suite bathroom with dual sinks and a frameless glass walk-in shower. The spacious layout provides flexibility for family living, guests, or a home office. Outside, the expansive backyard offers plenty of space to relax, entertain, or create your own outdoor retreat. Additional highlights include solar and an attached two-car garage, all conveniently located near great local schools, dining, CSUN, Pierce College, Westfield Topanga, Northridge Fashion Center, and convenient access to the 118 and 101 freeways, placing shopping, dining, and everyday amenities just minutes away.
Click to interact with map
Listed by Christina Blue with Real Broker (855) 450-0442
Property Type
Single Family Residence
Status
Active
MLS Number
SB26051532
Year Built
1981
Lot Size
6,186 sq ft