$584,998
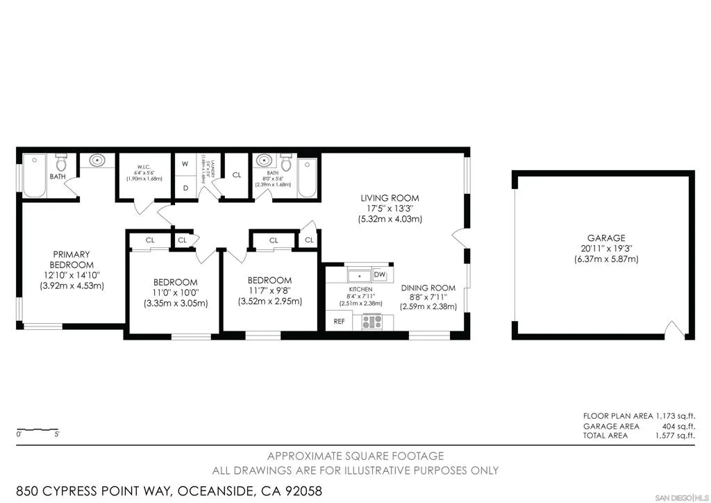
Click on Virtual Link tab to see 3D-Tour & Video of the property! Welcome to 850 Cypress Point way, a beautiful corner unit townhome located in the highly desirable Whelan Ranch community. It is just minutes from Camp Pendleton, perfect for military buyers, growing families or professionals to live in Coastal North County. This upper-level unit offers 3 beds/2Ba & on one level, situated above a private 2-car Garg, with no neighbors above or below for added privacy. The home features a bright open floor plan with abundant natural light, a modern kitchen with updated appliances, and newer flooring throughout (all under two years old) which makes this home A MUST see ! Enjoy a fully fenced private balcony and community amenities including a pool, spa, and playground. Located within 7 miles of the beach and close to Oceanside Pier, Oceanside Harbor, and Oceanside Municipal Golf Course.
Click to interact with map
Listed by Tom Zokaei with Golden State Realty Financial (858) 674-6600
Property Type
Condominium
Status
Active
MLS Number
260005728SD
Year Built
1986
Lot Size
2.08 acres