Skip to main content
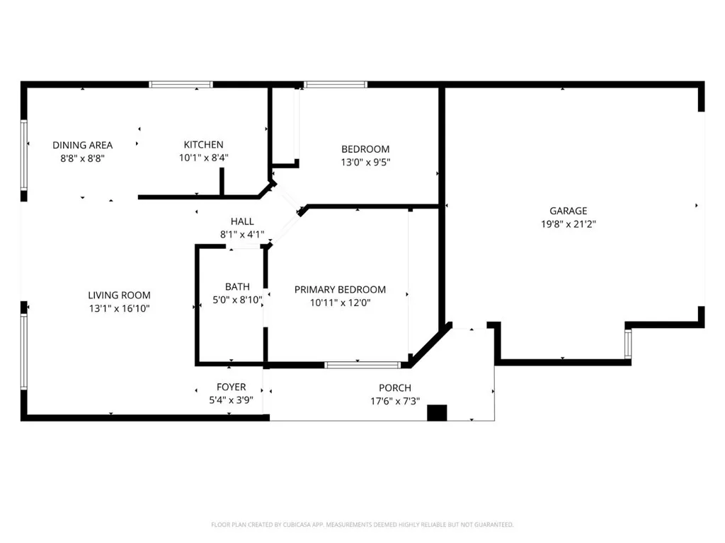
23609 Candle Shoe Court, Moreno Valley, California 92557 - $479,900 | Allan Real Estate Investments