Skip to main content
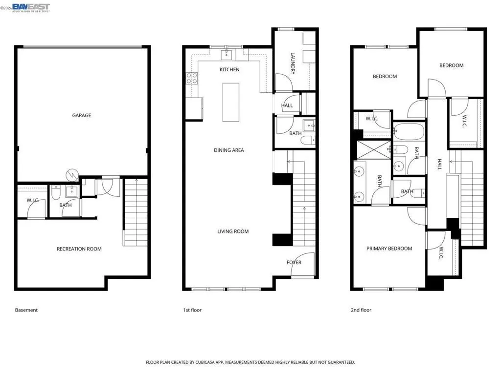
29823 29823 Mission Blvd, Hayward, California 94544 - $899,000 | Allan Real Estate Investments