Skip to main content
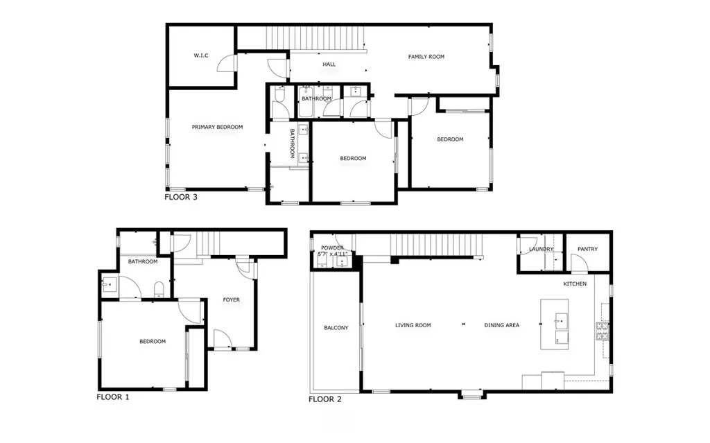
158 Abacus, Irvine, California 92618 - $1,399,000 | Allan Real Estate Investments