Skip to main content
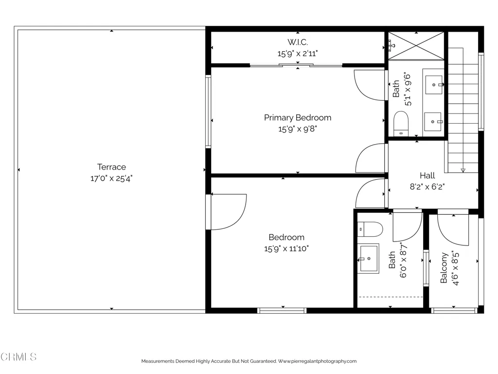
2354 Laverna Avenue, Los Angeles, California 90041 - $1,728,000 | Allan Real Estate Investments